
Der Antrag zur Verfüllung der Lehmgrube wurde auf Anraten des Landratsamtes vom Antragsteller zurückgezogen. Der Antrag war laut Landratsamt nicht genehmigungsfähig. Nach 2010 wurde auch der zweite Antrag abgelehnt. EIN GROßARTIGER ERFOLG FÜR DIE BÜRGER*INNEN DER GEMEINDE, DIE GEMEINDE KRONBURG UND FÜR UNSEREN VEREIN „NATUR STATT DEPONIE°. Hier eine Chronik…
04.03.2021 – Der Antrag
HIER der Antrag Soladis Beteiligungs GmbH – zum Nachlesen
Mit Datum vom 03.03.2021 stellt die Firma Soladis einen erneuten Antrag zur Verfüllung der Lehmgrube Hackenbach. Der Antrag wurde nicht wie üblich bei der Gemeinde eingereicht, sondern direkt beim Landratsamt.
25..03.2021 – Antrag erreicht den Illerwinkel
Am 25.03.21 wurde er an die Verwaltungsgemeinschaft Illerwinkel weitergeleitet, dann erreichte er am 31.03.21 die Gemeinde. Die Gemeinde hatte nur 2 Monate Zeit über den Antrag abzustimmen – Abgabetermin beim Landratsamt war der 25.05.21.
Üblicherweise werden die Anträge bei der betroffenen Gemeinde eingereicht. Dass dies hier nicht geschah ist ungewöhnlich. Ohne Behandlung der Gemeinde (Zustimmung oder Ablehnung) kann das Landratsamt den Antrag nicht abschließend entscheiden. Und es war auch interessant, dass der Antrag ca. 3 Wochen vom Landratsamt zur Gemeinde brauchte.
Zusammengefasst die wichtigsten Fakten:
- 950.000 Tonnen Lehmabfuhr,
- parallel 2.200.000 Tonnen Deponiebefüllung
- gesamt 3,15 Millionen Tonnen Material-Bewegung
- 100 bis 160 LKW Bewegungen am Tag zusätzlich zum vorhandenen LKW-Verkehr
- alle 5 Minuten bzw. 3,5 Minuten ein LKW zusätzlich
- von 6:00 – 22:00 Uhr
- 6 Tage die Woche,
- 22 Jahre lang
20.05.2021 – Der Beschluss der Gemeinde
- HIER der Beschlussvorschlag der Gemeinde
- HIER die Rede des Vorsitzenden von „Natur statt Deponie e.V.“ Rupert Reisinger
Der Gemeinderat der Gemeinde Kronburg stimmte am 20.05.2021 über den Antrag ab. Corona-bedingt fand die Sitzung in der Turnhalle Lautrach statt, um ca. 30 Besucher*innen die Möglichkeit zu geben an der Sitzung teilzunehmen.
Kurz zusammengefasst die Argumentation von RA Dr. Birkl im Beschlußvorschlag für die Gemeinde
- Da der Beschluss der Gemeinde die Lehmgrube NICHT zu verfüllen seit 1994 besteht und immer bestätigt wurde, handelt es sich um keine Verwertung, sondern um eine endgültige Ablagerung.Von daher kommt ein einfacher immissionsschutzrechtlicher Antrag nicht in Frage: es muß ein Planfeststellungsverfahren sein mit einem abfallrechtlichen Antrag.
- Da die Antragsteller weiter Lehm abbauen wollen aber nachweisen, dass es so nicht geht bzw. es für sie zu aufwändig ist, müssen sie einen neuen Tekturantrag zum Lehmabbau stellen, damit die Gemeinde die Rekultivierung wieder anpassen kann. Bis es soweit ist, muss das Landratsamt den Lehmabbau einstellen
Der Gemeinderat stimmte beiden Beschlüssen einstimmig zu. Das ist ein deutliches Zeichen der Gemeinde an das Landratsamt.
01.12.21 – Eine Ablehnung in Raten
Endlich am 01.12.21 erging der Bescheid des Landratsamtes. Es wurde ausführlich begründet dass der Antrag so nicht genehmigungsfähig ist und dem Antragsteller wurde die Möglichkeit gegeben, den Antrag bis zum 10.01.2022 zurückzuziehen.
Ende Januar teilte das Landratsamt der Gemeinde mit dass die Antragsteller den Antrag zurückgezogen haben. Ein schriftliche Bestätigung erhielt die Gemeinde erst nach mehrmaliger Aufforderung.
EIN GROßARTIGER ERFOLG FÜR DIE BÜRGER*INNEN DER GEMEINDE, DIE GEMEINDE KRONBURG UND FÜR UNSEREN VEREIN „NATUR STATT DEPONIE°-
Die Vorgeschichte
1984: Stilllegung der Ziegelei mit gleichzeitiger Einstellung des Lehmabbaus
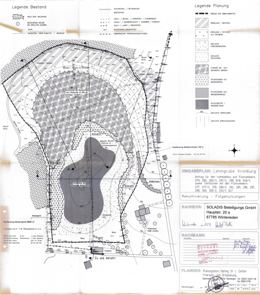
1994 Bau-Antrag auf Lehmabbau: wurde mit Rekultivierungsplan genehmigt – da gibt es genaue Pläne – Verfüllung ausgeschlossen – es steht so eindeutig im Genehmigungsbescheid des LA von 1994.
- Punkt 2: Die Rekultivierung des alten und des neuen Lehmabbaugeländes ist gemäß des vorliegenden Rekultivierungsplanes durchzuführen. Die Rekultivierungsarbeiten sind dem Ausbeutefortgang folgend, danach unmittelbar einzuleiten.
- Punkt 4: „Die Lehmgrube darf nicht mit Abfällen jeglicher Art und anderen, das Grundwasser gefährdenden Stoffen verfüllt werden.“

2001 Tekturantrag zum Antrag von 1994; Lehmabbau Fläche wurde deutlich erweitert, der Rekultivierungsplan wurde angepasst – Verfüllung wurde wieder ausgeschlossen – da gibt es noch genauere Pläne und genaue Beschreibungen im Antrag von 2001
- im Punkt 3 – Rekultivierung und Gestaltung
- und im Punkt 4 – Ausgleich des Eingriffs in Natur und Landschaft – ganz interessant – würde aber zu weit führen das hier darzustellen

2010 wieder ein Tekturantrag zum Antrag von 1994: diesmal kein Lehmabbau mehr sondern nur Verfüllung
Gericht: Verfüllung widerspricht den städtebaulichen Zielen – eben nicht zu verfüllen und erfordert daher ein abfallrechtliches Planfeststellungsverfahren und einen abfallrechtlichen Antrag
2021 neuerlicher Versuch zu verfüllen …. beginne von vorne